Steffie DW
interior architect
Where Tracks Meet...
The Train Station as a Third Place
the bright side of the moon
date. 2022 - 2023
city. Gent/ Nijlen
info.
At the start of my master’s thesis (title: the bright side of the moon), I was encouraged to choose a topic close to my heart. This became a personal quest, rooted in my own experiences of growing up in a social housing neighborhood, an environment often overshadowed by stigma and hidden shame. Confronting these perceptions, I asked myself:
How can we create hopeful, inclusive places within environments that are often defined by uniformity, individualism, and neglect?
My research drew on critical perspectives of urban development, including James Howard Kunstler’s 'The Geography of Nowhere' and Richard Sennett’s 'Together', which highlight the shortcomings of capitalist urban planning and the importance of social interaction in reducing segregation. Inspired by Ray Oldenburg’s concept of the “third place”, neutral, welcoming spaces outside of home and work, I explored how such places could foster connection, imagination, and exchange.
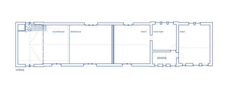
This inquiry led me to Belgium’s many underused train station buildings. As hubs of movement and neutrality, stations have the potential to become much more than transit points. By reimagining these spaces as third places, I developed a project for the adaptive reuse of the train station in Nijlen. Instead of tearing down and building anew, my design transforms the station into a community space that encourages encounters across social boundaries, offering an antidote to growing individualism.
Ultimately, my thesis project, “The Bright Side of the Moon,” proposes an architecture that resists isolation, reactivates suburban life, and demonstrates how overlooked spaces can become hopeful, shared environments for all.
"In the absence of informal public life, living becomes more expensive. Where the means and facilities for relaxation and leisure are not publicly shared, they become the objects of private ownership and consumption."
-Ray Oldenburg

Design research:



In this first-semester project, I focused on rethinking my own social neighborhood. I transformed the layout by breaking down the boundaries of individual gardens to create a shared communal space. The design was envisioned as a utopian concept, exploring how collective outdoor areas can strengthen social connections and foster a sense of community.
Site Nijlen:


"Most needed are those 'third places' which lend a public balance to the increased privatization of home life. Third places are nothing more than informal public gathering places. The phrase 'third places' derives from con-sidering our homes to be the 'first' places in our lives, and our work places the 'second.”
-Ray Oldenburg
Own design parameters third space:



1. A third place emerges from (playful) imagination.The space stimulates all the senses by playing with color, shape, light, texture, sound, and scent. It is a place that catches the eye and sparks curiosity. There is room to escape from reality and to experiment to the fullest. It is a place not claimed by any specific function, where normative spaces are transcended and nothing is imposed on you. In this way, it is neither a first nor a second space, but a new place shaped by the people who inhabit it. This makes the third place dynamic and ever-changing, a space where creativity is at the center.


2. A third place encourages (accidental) encounters. A third place functions as a social catalyst. It is a meeting space where people from different backgrounds come together and form connections. The space is designed to promote interaction. Here, strangers can become friends and existing relationships can be strengthened. The informal and accessible atmosphere makes people feel at ease to engage in conversation, thereby fostering social cohesion.
3. A third place encourages (diverse) knowledge exchange. The third place also serves as an incubator for knowledge sharing through the encounters that take place there. In this space, a variety of perspectives and opinions are encouraged and valued. This can take the form of workshops, lectures, discussions, or simply informal conversations. People are stimulated to share their experiences and insights, leading to a richer and more diverse community. Through this exchange, not only are individual knowledge and skills enriched, but a collective wisdom also emerges, contributing to the growth and development of the entire community.
The Design:























